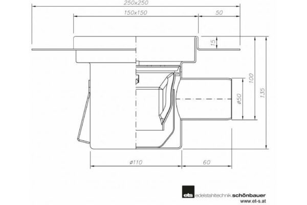
BODENABLAUF Q150 mit Dichtflansch
Bodenablauf Q150 mit Dichtflansch
150 x 150 mm, DN50 waagrecht
Detailinformation:
- Bodenablauf komplett aus Edelstahl
- Geruchsverschluss und Schmutzfangsieb aus Edelstahl
- Ablaufstutzen DN50 waagrecht
- einfache Reinigung durch rundes hygienisches Gehäuse
- abnehmbarer Gitterrost aus Edelstahl mit Rutschhemmung
- verschiedene Abdeckungsvarianten erhältlich
- Abmessung 150 x 150 mm
- Ausführung mit umlaufenden Dichtflansch
- Flansch fix mit Gehäuserand mitgekantet
Artikelnummer: Q1501W050AR


