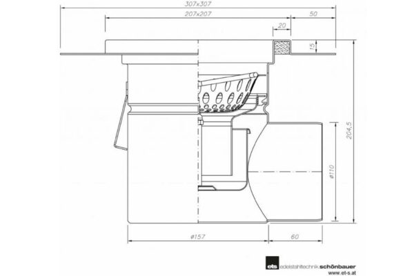
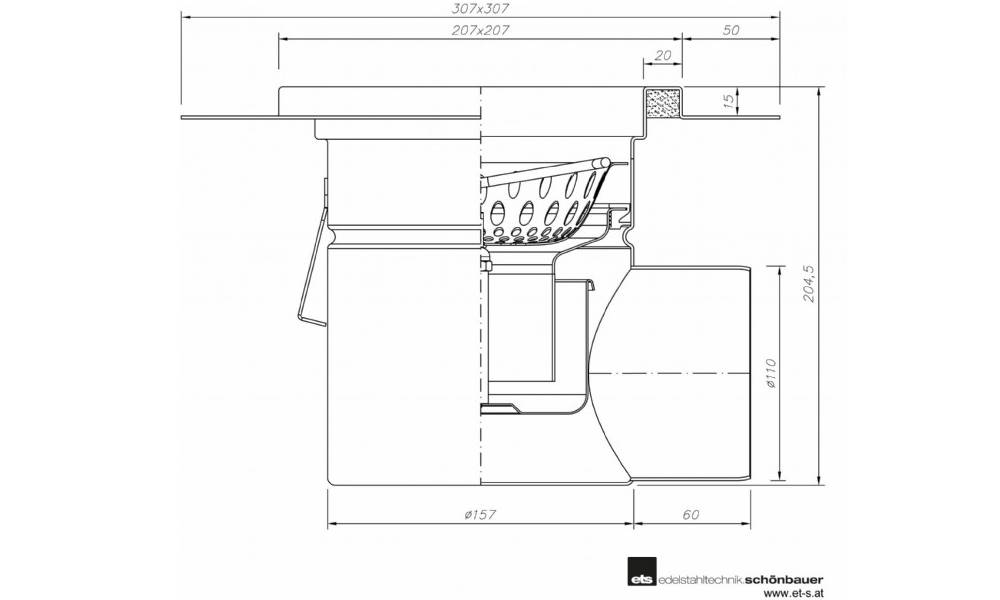
BODENABLAUF Q200 mit Dichtflansch
Bodenablauf Q200 mit Dichtflansch
207 x 207 mm, DN100 waagrecht
Detailinformation:
- Bodenablauf komplett aus Edelstahl
- Geruchsverschluss und Schmutzfangsieb aus Edelstahl
- Ablaufstutzen DN100 waagrecht
- einfache Reinigung durch rundes hygienisches Gehäuse
- abnehmbarer Gitterrost aus Edelstahl mit Rutschhemmung
- verschiedene Abdeckungsvarianten erhältlich
- Abmessung 207 x 207 mm
- Ausführung mit umlaufenden Dichtflansch
- Flansch fix mit Gehäuserand mitgekantet
Artikelnummer: Q2001W100AR


