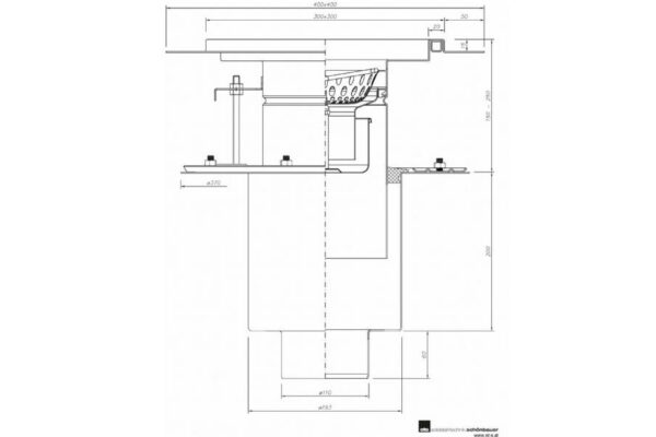
BODENABLAUF Q300mit Press- & Dichtflansch
Bodenablauf Q300 mit Press- & Dichtflansch
300 x 300 mm, DN100 senkrecht, 2-teilig
Detailinformation:
- Bodenablauf komplett aus Edelstahl
- zweiteilige Ausführung, Oberteil/Aufsatz höhenverstellbar
- mit Press- & Dichtflansch für zwei Abdichtungsebenen
- Geruchsverschluss und Schmutzfangsieb aus Edelstahl
- Ablaufstutzen DN100 senkrecht
- einfache Reinigung durch rundes hygienisches Gehäuse
- abnehmbarer Gitterrost aus Edelstahl mit Rutschhemmung
- verschiedene Abdeckungsvarianten erhältlich
- Abmessung 300 x 300 mm
Artikelnummer: Q3002S100PAR


