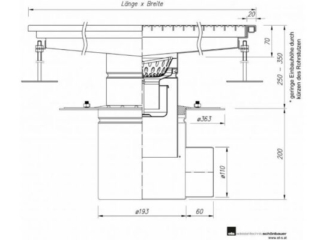
BODENWANNE MIT PRESSFLANSCH
Bodenwanne mit Pressflansch
DN100 waagrecht, 2teilig
Detailinformation:
- komplett aus Edelstahl
- zweiteilige Ausführung, Oberteil/Aufsatz höhenverstellbar
- Geruchsverschluss und Schmutzfangkorb aus Edelstahl
- Ablaufstutzen DN100 waagrecht
- hygienische durch einfache Reinigung
- abnehmbarer Gitterrost aus Edelstahl mit Rutschhemmung
Artikelnummer: BW2W100PRG

