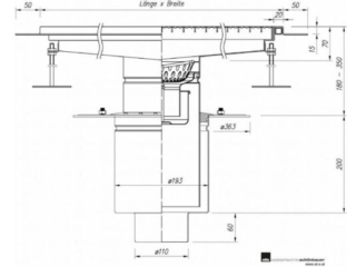
BODENWANNE
MIT PRESS- & DICHTFLANSCH
Bodenwanne mit Press- & Dichtflansch
DN100 senkrecht, 2teilig
Detailinformation:
- komplett aus Edelstahl
- zweiteilige Ausführung, Oberteil/Aufsatz höhenverstellbar
- Geruchsverschluss und Schmutzfangkorb aus Edelstahl
- Ablaufgehäuse fix mit Wanne verschweißt
- Ablaufstutzen DN100 senkrecht
- hygienische durch einfache Reinigung
- abnehmbarer Gitterrost aus Edelstahl mit Rutschhemmung
- Wannenrand mit umlaufenden Edelstahldichtflansch
Lagergrößen:
300×900, 300×1.200, 300×1.500, 400×400, 400×600, 500×500, 500×800, 500×1.000, 500×1.200, 600×600, 800×800 & 1.000×1.000 mm
Artikelnummer: BWAR2S100PRG

