SCHACHTABDECKUNG BEFÜLLBAR D400
Schachtabdeckung befüllbar D400
Detailinformation:
- komplett aus Edelstahl
- wasser- & geruchsdicht
- einfaches Öffnungssystem
- ebenerdiger Einbau
- zum bauseitigen Befüllen nach Wahl
- in sämtlichen Abmessungen herstellbar
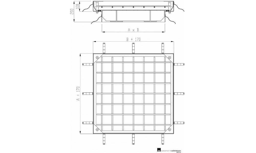
- Einbauhöhe 200 mm
- Belastungsklasse D400
SAB0606D: Lichte Öffnung 600 x 600 mm, Außenabmessung 770 x 770 mm
SAB0808D: Lichte Öffnung 800 x 800 mm, Außenabmessung 970 x 970 mm
Artikelnummer: SAB-D


