SCHACHTABDECKUNG
BEFÜLLBAR & AUFKLAPPBAR
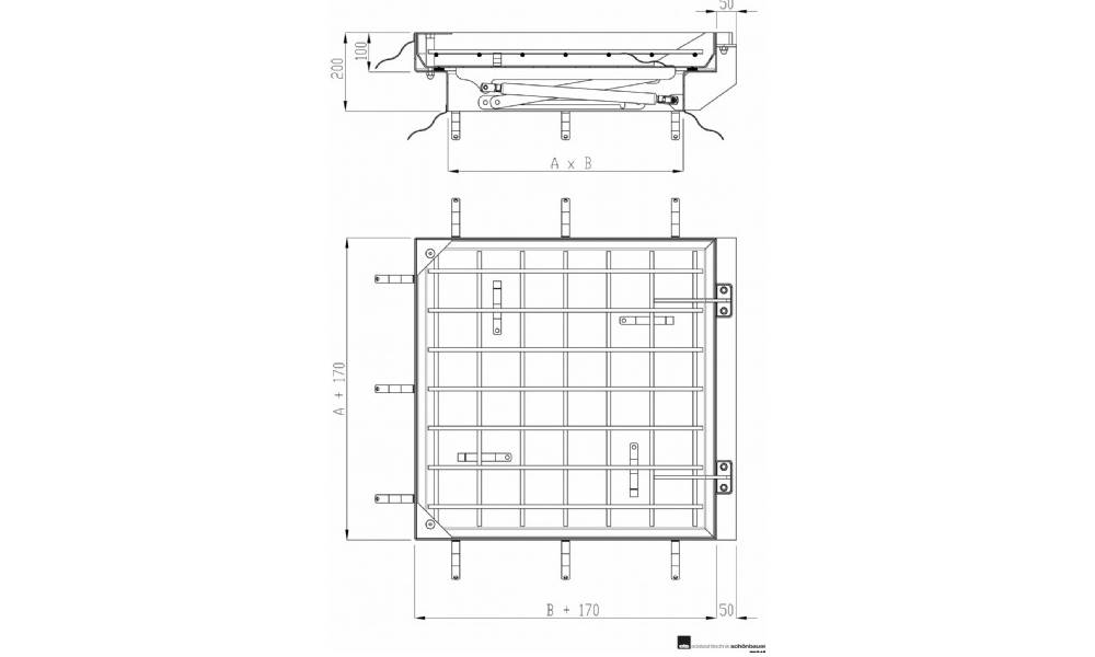
Schachtabdeckung befüllbar & aufklappbar
mit Scharnier & Gasdruckfeder
Detailinformation:
- komplett aus Edelstahl
- wasser- & geruchsdicht
- einfaches Öffnungssystem
- mit Scharnier und Gasdruckfeder
- ebenerdiger Einbau
- zum bauseitigen Befüllen nach Wahl
- in sämtlichen Abmessungen herstellbar
- Einbauhöhe 200 mm
- Belastungsklasse B125
SABSG0606: Lichte Öffnung 600 x 600 mm, Außenabmessung 770 x 770 mm
SABSG0808: Lichte Öffnung 800 x 800 mm, Außenabmessung 970 x 970 mm
Artikelnummer: SABSG


