SCHLITZRINNE
MIT BODENABLAUF AM ENDE
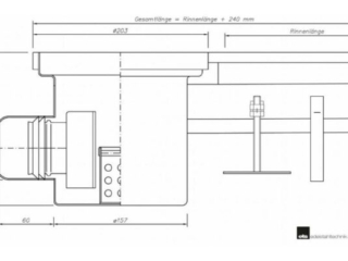
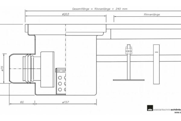
Schlitzrinne mit Bodenablauf am Ende
mit Bodenablauf R200, DN70 waagrecht
Detailinformation:
- komplett aus Edelstahl
- Ablaufgehäuse fix mit Schlitzrinne verschweißt
- Geruchsverschluss und Schmutzfangkorb aus Edelstahl
- Ablaufstutzen DN70 waagrecht
- sehr geringe Einbauhöhe
- massive Ausführung, staplerbefahrbar
- Rinne mit Randverstärkung aus Edelstahl
- Einlaufschlitzbreite 20 mm
Artikelnummer: SLAEW070


