SCHLITZRINNE
MIT BODENABLAUF AM ENDE
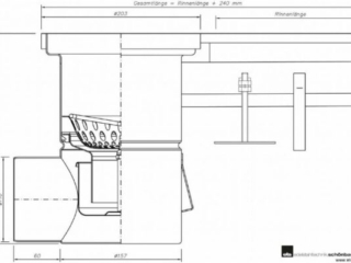
Schlitzrinne mit Bodenablauf am Ende
mit Bodenablauf R200, DN100 waagrecht
Detailinformation:
- komplett aus Edelstahl
- Ablaufgehäuse fix mit Schlitzrinne verschweißt
- Geruchsverschluss und Schmutzfangkorb aus Edelstahl
- Ablaufstutzen DN100 waagrecht
- massive Ausführung, staplerbefahrbar
- Rinne mit Randverstärkung aus Edelstahl
- Einlaufschlitzbreite 20 mm
Artikelnummer: SLAEW100


