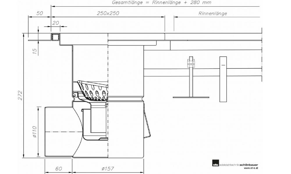
SCHLITZRINNE
MIT DICHTFLANSCH
Schlitzrinne mit Dichtflansch
mit Bodenablauf, DN100 waagrecht
Detailinformation:
- komplett aus Edelstahl
- Ablaufgehäuse fix mit Schlitzrinne verschweißt
- Geruchsverschluss und Schmutzfangkorb aus Edelstahl
- Bodenablaufgehäuse 250 x 250 mm
- Ablaufstutzen DN100 waagrecht
- mit umlaufenden Edelstahldichtflansch
- Rinne mit Randverstärkung aus Edelstahl
- Einlaufschlitzbreite 20 mm
Artikelnummer: SLARW100


