SCHMALRINNE
MIT BODENABLAUF AM ENDE
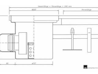
Schmalrinne mit Bodenablauf am Ende
mit Bodenablauf R200, DN70 waagrecht
Detailinformation:
- komplett aus Edelstahl
- Ablaufgehäuse fix mit Schmalrinne verschweißt
- Geruchsverschluss und Schmutzfangkorb aus Edelstahl
- Ablaufstutzen DN70 waagrecht
- massive Ausführung, staplerbefahrbar
- Rinne mit Randverstärkung aus Edelstahl
- Rinnenbreite 110 mm
Artikelnummer: SRAEW070




